본문 바로가기
꼬마빌딩 만들기

굴토심의 과정 정리

by 30밀리언 2023. 2. 11.
반응형


신축하려는 건물은 지하층이 있는 건물이라서 설계 당시부터 지하층 공사는 돈도 많이 들고 시간도 오래 걸린다는 설명을 유타설계사무소로부터 들었습니다.

 

지하 2층까지 땅을 파고 싶었지만 시간과 돈을 감당하기가 무리일 것 같아 지하 1층으로 하는 대신 지하층 층고를 높게 설계하는 것으로 결정을 했습니다.

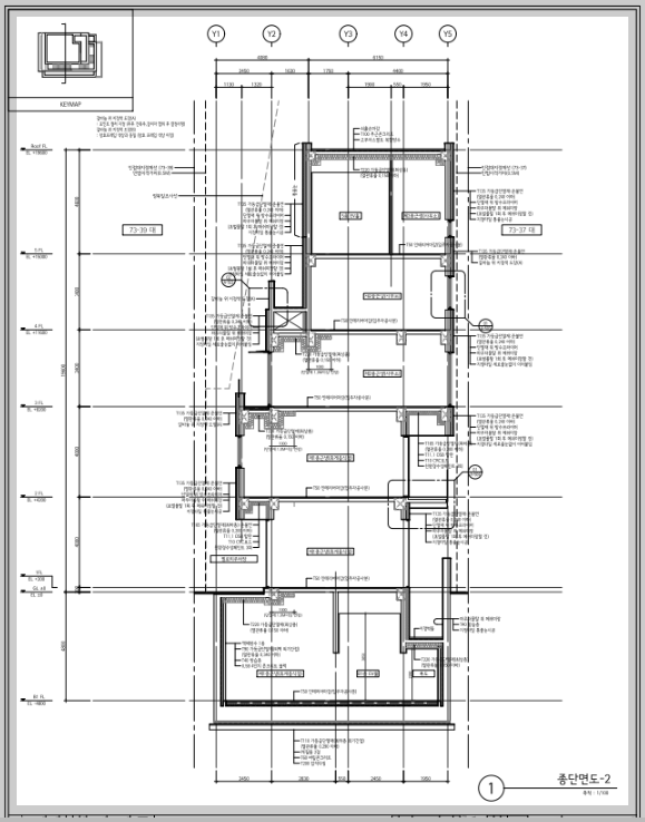
지하 1층 층고를 다른 층보다 높게 설계를 했습니다.


지하층 공사는 공사 도중 옆 건물이 무너지거나 공사 후 우리 건물에 문제가 발생할 수 있어 따로 설계도를 만들고 그 설계를 가지고 굴토심의 위원들한테 굴토심의를 받아야 공사를 할 수 있습니다.

 

공사 허가를 받기 위한 허가용 흙막이 공사 도면을 만들고 먼저 제출을 했습니다.

선축 허가를 받을 때 제출한 흙막이 설계도면


그 후 굴토심의를 받기 위한 흙막이 도면을 추가로 만들어야 했습니다.

 

예전에는 굴토심의를 받지 않고 지하층 공사를 한 적도 있다고 하는데 신축하려는 건물은 굴토심의를 받아야하는 대상이었습니다.

 

서울특별시 건축조례 제 7조

- 깊이 10미터 이상 또는 지하 2층 굴착공사, 높이 5미터 이상 옹벽을 설치하는 공사

 

- 굴착 영향 범위 내 석축, 옹벽 등이 위치하는 지하 2층 미만 굴착공사로서 석축, 옹벽등의 높이와 굴착 깊이의 합이 10미터 이상인 공사

 

- 굴착 깊이의 2배 범위 내 노후 건축물(RC조의 경우 30년 경과, 조적조 등의 경우 20년 경과된 건축물)이 있거나 높이 2미터 이상 옹벽, 석축이 있는 공사

 

위의 세 가지 중 하나라도 해당할 경우 서울시에서는 굴토심의 대상이 됩니다.

 

안타깝게도 신축하려는 건물을 세 번째 사항에 해당되었습니다.

 

바로 옆 건물이 75년 준공(43년 경과)된 조적조 건물이었습니다.

 

만약 지하층 공사를 포함한 신축 공사를 계획할 때는 옆 건물의 노후화 정도를 꼭 파악하는 것이 좋습니다. 왜냐하면 옆건물이 오래된 건물이 아닐 경우 굴토심의를 안 받고도 지하층 공사를 진행할 수 있기 때문입니다.

 

5월 20일 건축 허가 접수를 하고, 굴토심의를 받기 위한 도면 작업을 거의 한 달간 추가로 하고 6월 18일 굴토심의 접수를 했습니다.

굴토심의 용 도면


굴토심의 위원이 누구냐에 따라 굴토심의 기간이 달라질 수도 있다고 설계사님으로부터 들었는데 참 지루한 기간이었습니다.

 

6월 18일 굴토심의 접수 후 승인까지 약 한달의 기간을 예상했습니다.

 

하지만 7월 15일 굴토심의 결과 보완 결정이 떨어졌고 흙막이 도면을 설계한 분이 굴토 위원을 찾아가서 면담을 하고 추가로 도면을 수정해서 다시 접수를 하기로 했습니다.

 

그로부터 다시 한 달이 지나고 8월 19일 굴토심의가 완료되었습니다.

 

흙막이 도면을 완성하고 굴토심의를 접수한지 두 달 만에 굴토심의가 완료된 것입니다.

 

지금이 야 글 몇줄로 굴토심의가 완료되는 것처럼 쓰지만 그 당시에는 정말 지루하고 답답한 상황이었습니다.

 

굴토심의가 승인되지 않으면 착공 신고를 할 수 없습니다.

 

굴토심의 접수를 하고 나면 그냥 심의 위원의 처분을 기다릴 뿐 할 수 있는 일이 없었습니다.

 

최종 굴토심의 완료도 깔끔한 완료가 아니라 조건부 승인이었습니다.

 

승인은 해주지만 굴토심의 위원이 요구하는 사항을 추가로 제출하는 조건이라서 흙막이 설계 업체에서는 계속 작업을 진행해야 했습니다.

 

다시 신축을 하라고 하면 굴토심의를 받지 않는 조건을 확인하고 신축을 해야겠다는 생각이 들 정도로 까다로운 과정이었습니다.

 

굴토심의가 완료되어 이제 착공 신공가 기다리고 있었습니다.

반응형

'꼬마빌딩 만들기' 카테고리의 다른 글

실시 설계 과정  (0) 2023.02.10
방호관 설치 과정 정리  (0) 2023.02.09
설계완성 그리고 강남구청 건축허가  (0) 2023.02.08
하우빌드 미팅  (0) 2023.02.04
시공사 선택하기  (0) 2023.01.16

댓글